Rif: Via San Bernardo
PIOSSASCO
TORINO
In contesto tranquillo di poche unità abitative, proponiamo appartamento del 2001 su due livelli.
Al primo piano: ingresso su soggiorno, cucina abitabile con terrazzino ben sfruttabile, bagno, ripostiglio; il piano sottotetto abitabile, raggiungibile con comoda scala in muratura, è composto da due camere, bagno, e ampio locale di sgombero con balconcino.
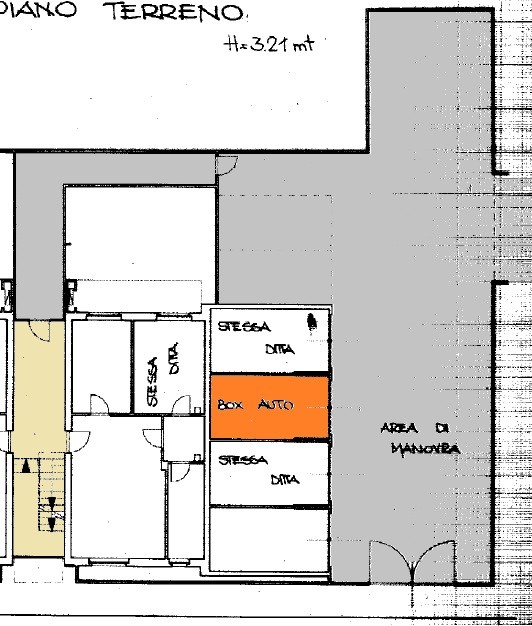
Completano la proprietà la cantina al piano interrato ed il box auto (alto 3,20 metri) al piano terra interno cortile.
Riscaldamento autonomo con caldaia a condensazione installata nel 2021.
L'appartamento è ben rifinito, con climatizzatori su entrambi i piani, impianto antifurto, serramenti in legno con doppi vetri, portoncino blindato.
Spese condominiali contenute.
Posizione tranquilla e comoda ai servizi, a pochi passi da scuole, biblioteca e parco Baden Powell.
Prezzo euro 189.000,00 compreso box auto
Al primo piano: ingresso su soggiorno, cucina abitabile con terrazzino ben sfruttabile, bagno, ripostiglio; il piano sottotetto abitabile, raggiungibile con comoda scala in muratura, è composto da due camere, bagno, e ampio locale di sgombero con balconcino.
Completano la proprietà la cantina al piano interrato ed il box auto (alto 3,20 metri) al piano terra interno cortile.
Riscaldamento autonomo con caldaia a condensazione installata nel 2021.
L'appartamento è ben rifinito, con climatizzatori su entrambi i piani, impianto antifurto, serramenti in legno con doppi vetri, portoncino blindato.
Spese condominiali contenute.
Posizione tranquilla e comoda ai servizi, a pochi passi da scuole, biblioteca e parco Baden Powell.
Prezzo euro 189.000,00 compreso box auto
Consistenze
| Descrizione | Superficie | Sup. comm. |
|---|---|---|
| Principali | ||
| Immobile - 1° piano | 50 Mq | 50 Mqc |
| Terrazza - 1° piano | 12 Mq | 4 Mqc |
| Immobile - 2° piano | 45 Mq | 45 Mqc |
| Altro - 2° piano | 8 Mq | 4 Mqc |
| Balcone - 2° piano | 3 Mq | 1 Mqc |
| Accessorie | ||
| Cantina - piano interrato | 6 Mq | 2 Mqc |
| Box/Garage - piano terra | 16 Mq | 8 Mqc |
| Totale | 114 Mqc | |






